$321,000
3 Bed
10,000 Sqft Lot

24335 Janel Ave, Newhall, California 91321

  • Residential Property Type
  • 2018 Year Built
Property Description

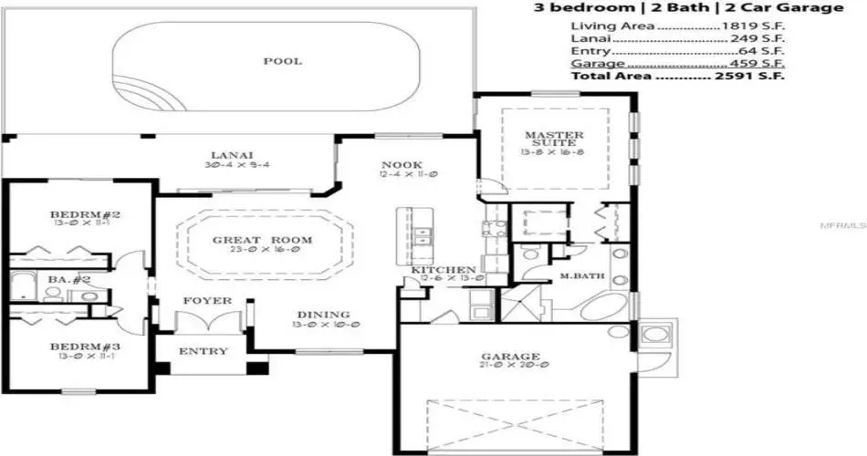
Pre Construction. To be built. Price includes land and construction costs. The Palm Island Model to be built on this homesite is a luxurious waterfront home. At 2591 sqft (1819 sqft under air) it offers three bedrooms, greatroom, two full baths, and a two car garage. This home boasts an impressive double door entry, Brick pavered entry and lanai, high ceilings throughout, trayed masterbedroom and living room ceilings, real wood cabinets and granite countertops in the kitchen and bathrooms, high quality ceramic flooring, carpeted bedrooms, eight foot interior doors, stainless appliances, prewired and plumbed for outdoor kitchen, water and electric run to seawall, and much more. Photos are from a completed home and may show some non standard features. Builder providing a one year builder’s warranty plus a 10 year structural warranty backed by “Bonded Builders”. Pool package available starting at $31,000. Call today to discuss or take a tour. Photos from completed home, same builder. Photos may show some non standard upgrades.

Basic Details
Residential
For sale
C7042230
$321,000
Street
3
2018
10,000 Sqft
Features
Appliances
Address Map
Janel Ave
24335
0
W119° 27' 42.8''
N34° 22' 13.5''
MLS Add-on
RE/MAX ANCHOR OF MARINA PARK
Chad McCrory
Review
Overall
0 Votes
100 70.0 0
Check-in
3 Votes
Communication
3 Votes
Location
3 Votes
Value
3 Votes
Accuracy
3 Votes
Cleanliness
3 Votes
0 / 750 Characters
Sharon M.
2017-06-12 09:58:14
At vero eos et accusamus et iusto odio dignissimos ducimus qui blanditiis praesentium voluptatum deleniti atque corrupti quos dolores et quas molestias excepturi sint occaecati cupiditate non provident, similique sunt in culpa qui officia deserunt mollitia animi, id est laborum et dolorum fuga. Et harum quidem rerum facilis est et expedita distinctio.
0
0
Reply
0 / 750 Characters
agent
2017-06-12 09:58:14
Lorem ipsum dolor sit amet, consectetur adipiscing elit, sed do eiusmod tempor incididunt ut labore et dolore magna aliqua. Ut enim ad minim veniam, quis nostrud exercitation ullamco laboris nisi ut aliquip ex ea commodo consequat. Duis aute irure dolor in reprehenderit in voluptate velit esse cillum dolore eu fugiat nulla pariatur.
0
0
Reply
0 / 750 Characters
howard
2017-06-12 09:58:14
At vero eos et accusamus et iusto odio dignissimos ducimus qui blanditiis praesentium voluptatum deleniti atque corrupti quos dolores et quas molestias excepturi sint occaecati cupiditate non provident, similique sunt in culpa qui officia deserunt mollitia animi, id est laborum et dolorum fuga. Et harum quidem rerum facilis est et expedita distinctio.
0
0
Reply
0 / 750 Characters
Load More
Agent info
Realtyna
Realtyna® Inc., 200 Continental Drive, Suite 401, Newark, DE 19713 USA
Mortgage Calculator
$
$ %
years
%
$ %per year
$ %per year

$
Contact Agent
Contact Us
info@realtyna.com +1-302-525-8222